Snekker i Akershus
Formidlede anbud
                    - 
                                        0Siste år
- 
                                        0Siste 3 mnd
- 
                                        0Aktive nå
Akershus
                        
                                                    Avsluttet
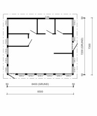
                                            Bygge modulhytte fra Lövångersbygg
                                                                                                                    Vi ønsker fastpris på montering av modulhytte fra (info fjernet)
Hytten skal bygges på Rakke i Stavern. Den er uten strøm og vann. Den skal stå på pilarer på berg grunn.
Oppdraget omfatter: - riving av gammel hytte og bortkjøring av avfall 
- oppsetting av pilarer
- montering av elementhytte ut fra monteringsanvisning
- innvendig montering ut fra planløsning
Utvendig materialer blir levert til byggeplass fra lövångersbygg.
Innvendig skaffer dere isolasjon 15cm, stendere, panel, klikklaminat gulv, foringer og lister. Trenger ikke lage baderom.
                                                                                                            
                                                    Anbud id:
                                                        1003838
                                                    - 
                                                                Sted:Bærum
- 
                                                                Registrert:Onsdag 4. Juni 2025
        Er du interessert i dette oppdraget?
            
    
            
    
Lignende oppdrag i Akershus
                                            6 anbud
                                        
                                        - 
    ![Lekkasje pa vegg Noe vannlekkasje i vegg og tak i stuen]() Noe vannlekkasje i vegg og tak i stuenSiden det regner mye nå, har det vist seg at det er noe vannlekkasje i veggen og taket i stuen min. Se vedlagte bilder. Jeg håper du kommer og sjekker. Du kan åpne lekkasjestedet og finne ut årsaken... Noe vannlekkasje i vegg og tak i stuenSiden det regner mye nå, har det vist seg at det er noe vannlekkasje i veggen og taket i stuen min. Se vedlagte bilder. Jeg håper du kommer og sjekker. Du kan åpne lekkasjestedet og finne ut årsaken...- 
                                    Bærum
- 
                                Torsdag 30. Oktober 2025
 
- 
                                    
- 
    ![17617325061083973899177104405008 Fikse skap med fuktskader og bytte benkeplate]() Fikse skap med fuktskader og bytte benkeplateTrenger noen som kan hjelpe oss med å fikse/skifte/bytte veggene i skapene slik at det ikke blir mer mugg fra vannlekkasjen vi nylig opplevde. Vi trenger også noen som kan hjelpe oss med å bytte benke... Fikse skap med fuktskader og bytte benkeplateTrenger noen som kan hjelpe oss med å fikse/skifte/bytte veggene i skapene slik at det ikke blir mer mugg fra vannlekkasjen vi nylig opplevde. Vi trenger også noen som kan hjelpe oss med å bytte benke...- 
                                    Bærum
- 
                                Onsdag 29. Oktober 2025
 
- 
                                    
- 
    Reparasjon av lekkasje i takventilasjonHei, det har vært en vannlekkasje fra taket og inn i huset under regnet. Vannet kom fra ventilasjonstilkoblingen mot utendørs. Det ser ut til at ventilasjonstilkoblingen er løs. Vi ser etter en løsni...- 
                                    Bærum
- 
                                Lørdag 25. Oktober 2025
 
- 
                                    
- 
    ![IMG 5831 Konsollbord til butikk]() Konsollbord til butikkTrenger konsollbord til butikk mål: 180langt80 bredt og 80 høyt Ønsker hyller under bordet. Bordet skal males, så ønsker det bygget med plater Konsollbord til butikkTrenger konsollbord til butikk mål: 180langt80 bredt og 80 høyt Ønsker hyller under bordet. Bordet skal males, så ønsker det bygget med plater- 
                                    Bærum
- 
                                Fredag 24. Oktober 2025
 
- 
                                    
- 
    Snekker og malerInnvendige mindre snekkerarbeider, montering av dører, belastning mv, samt sparkling og maling av 4 rom og maling av trapp, ønsker rimelig fastpris eller timepris etter avtale- 
                                    Bærum
- 
                                Torsdag 23. Oktober 2025
 
- 
                                    
- 
    ![IMG 6503 Lage ny ramme til garasjeport - Må gjøres før 7. november]() Lage ny ramme til garasjeport - Må gjøres før 7. novemberSnekker demonterer port river alt treverk i lysåpning og setter opp nytt til 550x219 med solid spikerslag rundt hele lysåpning, på innside av leca. Lage ny ramme til garasjeport - Må gjøres før 7. novemberSnekker demonterer port river alt treverk i lysåpning og setter opp nytt til 550x219 med solid spikerslag rundt hele lysåpning, på innside av leca.- 
                                    Bærum
- 
                                Tirsdag 21. Oktober 2025
 
- 
                                    
 
                                     
                                     
             
                                     
                                     
                                    