Anbudstorget har blitt Fixa
En ny og enklere tjeneste – enten du er privatbruker eller bedrift.
Anbudstorget ble til Fixa 01.03.2026. Logg inn på Anbudstorget for å avslutte de siste jobbene og laste ned historikk eller viktige dokumenter, enten du er privatbruker eller bedrift. Gå til Fixa.no for å finne nye jobber eller legge ut et oppdrag.
Innhold på Anbudstorget vil være tilgjengelig i omtrent ett år fremover.
Snekker i Oslo
Formidlede anbud
-
0Siste år
-
0Siste 3 mnd
-
0Aktive nå
Oslo
Avsluttet
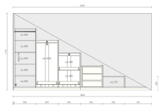
Bygge plassbygget skap under trapp
Hei, vi ønsker enten å få bygget et plassbygget skap under trappen, eller å kjøpe Ikea Platsa-moduler og få profesjonell hjelp til å lage dører og karm slik at det ser plassbygget ut. Her er vi helt fleksible og ønsker tilbud.
Det står i dag et selvbygget møbel der, men det fjernes i disse dager i forbindelse med bytting av gulvflis.
Anbud id:
1041005
-
Sted:Oslo
-
Registrert:Onsdag 28. Januar 2026
Er du interessert i dette oppdraget?
Lignende oppdrag i Oslo
6 anbud
-
Lakkering av stuebord i flammebjørk fra hødnebø med klafferKategori: mobelsnekker Beskrivelse: Lakkering av stuebord i flammebjørk fra hødnebø med klaffer Finish: Halvblank Innen: Ingen hast Behandling: Lakkert Kundetype: Privat Krav: Klaffer
-
Oslo
-
Fredag 27. Februar 2026
-
-
Oppfriskning av bad – mindre kosmetiske utbedringerJeg ønsker tilbud på mindre kosmetiske oppgraderinger på bad i leilighet i Oslo. Arbeidet gjelder: Bytte av dusjstopp / slukstopp (se bilder) Fjerne og legge ny silikon rundt dusjsone Kontroll og evt....-
Oslo
-
Lørdag 28. Februar 2026
-
-
Spesialtilpasset sittebenkØnsker en spesialtilpasset sittebenk med pute i gang som må bygges rundt en søyle (se vedlagt bilde). Ønsker at det skal være mulig med en utrekkbar skuff eller et lokk på toppen for oppbevaring. Ca m...
-
Oslo
-
Lørdag 28. Februar 2026
-
-
Dører, vinduer og terrassetakHei Vi ønsker å bytte 1 dør og 4 vinduer på yttervegg, ha en ny baderomsdør og vurdere et nytt uterom, i vårt hus i Daniel Walstads vei 9, 0493 Oslo. Vi ønsker at dører og vinduer skal være miljøve...-
Oslo
-
Lørdag 28. Februar 2026
-
-
Rundt glassbord og bokhylleJeg ønsker å få laget et rundt (spise)bord med glassplate og et minimalistisk understell, 125 cm i diameter. Videre en minimalistisk bokhylle til stue.
-
Oslo
-
Fredag 27. Februar 2026
-
-
Bytte av tak på enebolig. Enebakkveien 76Ønsker tilbud på bytte at tak (Islola powertekk nordic eller tilsvarende) Inkl ny papp, lekter, takrenner, pipebeslag og takvindu
-
Oslo
-
Fredag 27. Februar 2026
-