Anbudstorget har blitt Fixa
En ny og enklere tjeneste – enten du er privatbruker eller bedrift.
Anbudstorget ble til Fixa 01.03.2026. Logg inn på Anbudstorget for å avslutte de siste jobbene og laste ned historikk eller viktige dokumenter, enten du er privatbruker eller bedrift. Gå til Fixa.no for å finne nye jobber eller legge ut et oppdrag.
Innhold på Anbudstorget vil være tilgjengelig i omtrent ett år fremover.
Elektriker i Vestland
Formidlede anbud
-
0Siste år
-
0Siste 3 mnd
-
0Aktive nå
Vestland
Avsluttet
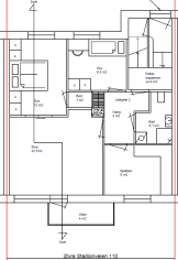
Elektro installasjon til renovert leilighet
Leilighet skal renoveres, i den forbindelse skal alle kurser trekkes om fra sikringskap tilhørende leilighet. Arbeid må utføres i periode 16. 02 -28. 02
Øvre stadionveien 110 laksevåg
Anbud id:
1040123
-
Sted:Bergen
-
Registrert:Torsdag 22. Januar 2026
Er du interessert i dette oppdraget?
Lignende oppdrag i Vestland
6 anbud
-
Enkel renovering av badJeg har et bad i 1. Etg hvor vi ønsker å gjøre noen enkle tilpasninger. Arbeid vi trenger hjelp til er bl. a: - fjerne 2 stk flislagte dusjvegger, som skal erstattes av et standard dusjhjørne - ersta...
-
Bergen
-
Fredag 27. Februar 2026
-
-
Bytte eksisterende stikkontakter og montere et nytt fra en bryter.Hei, Kontor: Legge opp en nytt stikkontakt fra en eksisterende bryter. Kontakten kan monteres på listehøyde under bryteren. Stue: Her har vi pusset opp, og det må kables på nytt fra en eksisterende...
-
Bergen
-
Torsdag 26. Februar 2026
-
-
Reparasjon av defekt lysrørkobling i speil på badKategori: elektriker Beskrivelse: Reparasjon av defekt lysrørkobling i speil på bad Antall speil/armaturer: 1 Integrert belysning: Speil med integrert belysning Strømtilkobling: Fastmontert (direk...
-
Bergen
-
Tirsdag 24. Februar 2026
-
-
Etablering av takstikkontakter for LED-striperJeg ønsker tilbud på å etablere 2 stk skjulte 230 v stikkontakter i nedfôring/kasse i taket. - Hver stikkontakt skal styres av eksisterende dimmer (2 dimmere totalt) - Stikkene skal brukes til led...-
Bergen
-
Tirsdag 17. Februar 2026
-
-
El bil lader hjemme.El bil lader montert i / ved huset - ønsker tilbud på pakke ink montering. Har bilder av sikringsskap og hus ved kontakt. Har eqa 2026 model - 12. 000 årlig - ønsker fast kabel på laderern - med lengd...
-
Bergen
-
Mandag 16. Februar 2026
-