Rørlegger i Østfold
Formidlede anbud
-
0Siste år
-
0Siste 3 mnd
-
0Aktive nå
Østfold
Avsluttet
Frostsikker utekran på annen ende av huset
Vi ønsker en frostsikker utekran mot sør.
Det må legges nytt rør i kjeller som festes i taket
fra vedbod som er under kjøkken
gjennom matbod, sportsbod og gammel kjellerstue og borres gjennom betongvegg mot sør.
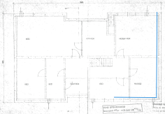
Legger ved en gammel plantegning av kjeller for å illustrere. Blå linje illustrerer føring av nytt rør.
Ønsker prisoverslag og antydning om hvor snart dette kan utføres.
Anbud id:
1000884
-
Sted:Sarpsborg
-
Registrert:Tirsdag 20. Mai 2025
Er du interessert i dette oppdraget?
Lignende oppdrag i Østfold
3 anbud
-
Reparere utekran i eneboligUtekran har ikke fungert siden jeg kjøpte huset da den ikke kan stoppes om den settes på. Det skal visst være en enkel fiks. Om det anbefales å vente til våren vil ønsker jeg å bli opplyst om dette. M...-
Sarpsborg
-
Mandag 22. Desember 2025
-
-
Autorisert Rørlegger ( en man foretak )Rørlegger søkes for ny hytte prosjekt i Molde med start vår/sommer 2026
-
Sarpsborg
-
Tirsdag 16. Desember 2025
-
-
Montere benkeoppvaskmaskin, vann, avløp,Trekke avløp og vannforsyning, gjennom benkeplate nedunder vask. Benkeoppvaskmaskin!-
Sarpsborg
-
Lørdag 6. Desember 2025
-