Anbudstorget har blitt Fixa
En ny og enklere tjeneste – enten du er privatbruker eller bedrift.
Anbudstorget ble til Fixa 01.03.2026. Logg inn på Anbudstorget for å avslutte de siste jobbene og laste ned historikk eller viktige dokumenter, enten du er privatbruker eller bedrift. Gå til Fixa.no for å finne nye jobber eller legge ut et oppdrag.
Innhold på Anbudstorget vil være tilgjengelig i omtrent ett år fremover.
Maler, Snekker i Vestland
Formidlede anbud
-
0Siste år
-
0Siste 3 mnd
-
0Aktive nå
Vestland
Avsluttet
Håndtverk arbeid: Gipse hel leilighet 1 lag
62 kvm leilighet skal pusses opp utenom bad, i den forbindelse er det behov for å legge et lag med 12mm gips på både vegger og tak, spakling og pussing og maling.
Eventuelt så er det mulighet for å dele opp jobben.
* Legge gips
*Spakling pussing og maling.
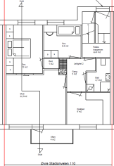
Se vedlagt plantegning.
Ønsker pris på arbeidet, Befaring kan gjennomføres i forkant. Oppstart ca 2 uken i februar.
Anbud id:
1039060
-
Sted:Bergen
-
Registrert:Torsdag 15. Januar 2026
Jobben utført av:
Er du interessert i dette oppdraget?
Lignende oppdrag i Vestland
6 anbud
-
Enkel renovering av badJeg har et bad i 1. Etg hvor vi ønsker å gjøre noen enkle tilpasninger. Arbeid vi trenger hjelp til er bl. a: - fjerne 2 stk flislagte dusjvegger, som skal erstattes av et standard dusjhjørne - ersta...
-
Bergen
-
Fredag 27. Februar 2026
-
-
Montering Epoq kjøkkenØnsker tilbud på montering av Epoq kjøkken 22 skap, med benkeplate i laminat og underlimt vask. Hvitevarer skal også monteres. Ønsker montering fra uke 12. Er på Arnatveit i Arna, Bergen.
-
Bergen
-
Tirsdag 24. Februar 2026
-
-
Skifte 1 kjellerytterdør og 1 sidedør på garasjenKjellerytterdør bør skiftes etter 40 år. Den funker fint i dag, men tettingen er dårlig. Sidedøren på garasjen går ikke an å lukke, dørbladet er skjeivt og ny dør med karm må settes inn.
-
Bergen
-
Tirsdag 24. Februar 2026
-
-
Montere opp plassmonterte hyller i stuen.Ca 200cm høyde * 120cm bredde * 30cm dybde. Ønsker 3-4 hyllplater, da hyllene skal monteres over en fastmontert ovn på veggen. Lagt ved et bilde av hvordan veggen ser ut nå, og et bilde av ønsket re...-
Bergen
-
Mandag 23. Februar 2026
-
-
Helsparkle vegger i gangTrenger hjelp med å helsparkle eller legge veggfornyer på vegg Har kjøpt inn sparkelmasse og veggtapet + lim
-
Bergen
-
Mandag 23. Februar 2026
-
-
Utvide eksisterende altan ca 15 m2Utvide eksisterende altan rundt hjørnet på huset, ca 15 m2 i 2. Etg.
-
Bergen
-
Søndag 22. Februar 2026
-