Betong, Gulv i Oslo
Formidlede anbud
-
0Siste år
-
0Siste 3 mnd
-
0Aktive nå
Oslo
Avsluttet
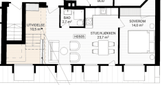
Legge Avrettingsmasse på 40kvm
Med godkjenning og dokumentasjon kan det legges opptil 2cm Avrettingsmasse på 40kvm i 5 etasje.
Trenger pris tilbud på dette.
(Dette gjelder ikke utvidelsen på bildet).
Anbud id:
1037136
-
Sted:Oslo
-
Registrert:Torsdag 25. Desember 2025
Er du interessert i dette oppdraget?
Lignende oppdrag i Oslo
6 anbud
-
Rehabilitering av hybel i kjelleretasje – sparkling, maling, riving og gulvleggingVi rehabiliterer en hybel i kjelleretasje i enebolig med totalareal ca. 45 kvm og ønsker tilbud på følgende arbeider: – sparkling, pussing og maling (inkl. Grunning) av gips på vegger og tak – listef...
-
Oslo
-
Torsdag 12. Februar 2026
-
-
Legge linoleumsgulv i gang med fuktighet og ujevnheterKategori: Beskrivelse: legge linoleumsgulv Romtype: Gang Forberedelse: Usikker Materialer: har ikke kjøpt enda Innen: 1 måned Størrelse: Mindre enn 10 kvm Kundetype: Privat Krav: Fuktighet elle...
-
Oslo
-
Torsdag 12. Februar 2026
-
-
Teppelegging av sisalteppe i trapp og soveromServicekategori: Teppelegging Beskrivelse: Jeg ønsker heldekkende sisalteppe i 15 trinns svingtrapp og heldekkende sisalteppe på 2 soverom på 8 m2. Kunne jeg få et tilbud på teppe og legging Type: N...
-
Oslo
-
Onsdag 11. Februar 2026
-
-
BalkongrehabiliteringRustbehandling, behandling og utbedring av metallgelender, undersøkelse og eventuell utbedring av betongfundament og metallramme
-
Oslo
-
Onsdag 11. Februar 2026
-
-
Flislegge baderomsgulvLite bad som trenger nytt gulv fliser + Membran intakt. Mulig noe planing også.
-
Oslo
-
Tirsdag 10. Februar 2026
-
-
SveisemembranSveisemembran til gulv. Kun pris på Sveisemembran 6, 5 kvm-
Oslo
-
Torsdag 5. Februar 2026
-