Taktekker i Rogaland
Formidlede anbud
-
0Siste år
-
0Siste 3 mnd
-
0Aktive nå
Rogaland
Avsluttet
Mønebeslag og takrenner i kobber til drivhus
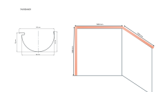
Hei! Trenger pris på tillaging av mønebeslag x 2, samt takrenner i kobber til det hjemmelagde drivhuset vårt. mål og bekrivelse vedlagt med bildene.
Takrenner og nedløpsrør trengs det to av, altså en til hver side av "utstikkeren"
Anbud id:
990513
-
Sted:Stavanger
-
Registrert:Fredag 28. Mars 2025
Er du interessert i dette oppdraget?
Lignende oppdrag i Rogaland
6 anbud
-
Installer en ny panser på ventilasjonsrøret på hustaket.Hette på ventilasjonsrøret har blåst av hustak og regn kommer inn i huset. En ny trenges installert.-
Stavanger
-
Torsdag 30. Oktober 2025
-
-
Metalltekking av tak med beslag og takrennerKomplett tekking av tak i metall (helst stål eller sink) på en enebolig. Arbeidet skal inkludere alt nødvendig beslag, pipeinndekning, takrenner og nedløp, slik at taket er ferdig tett og klart til...
-
Stavanger
-
Lørdag 25. Oktober 2025
-
-
Komplett takbytte - 100 m2 - Isola Powertekk ExclusiveVi ønsker et komplett takbytte for enebolig fra 1961. Ønsker Isola Powertekk Exclusive Sort høyglans som takpanner/takplater. i 2025 har det blitt installert takrennesystem- og nedløp i sort aluminium...-
Stavanger
-
Søndag 19. Oktober 2025
-
-
Blikkbeslag langs rekkverk på verandaHei! Jeg har veranda over sokkeletasjen langs hele framsiden av huset. Nylig fått glassrekkverk. Har støypt dekke på hele 1. Etasjen. Foran, under rekkverket er det har renninger fra regn vannet som...
-
Stavanger
-
Torsdag 16. Oktober 2025
-
-
Rensing av ventilasjon i hele huset for å fjerne støvKategori: blikkenslager Tjeneste: Ventilasjon Kundetype: Privat Beskrivelse: mye støv i huset fra ventilasjon, har villavent for alle etasjer osv, trenger en totalt støv rens Størrelse: 4 eller...
-
Stavanger
-
Tirsdag 14. Oktober 2025
-