Combined Shape Group 13 Combined Shape anbudstorget_logo Group 2 Group 6 Path 2 shutterstock_584449174 Shape
Anbudstorget har blitt Fixa
En ny og enklere tjeneste – enten du er privatbruker eller bedrift.

Anbudstorget ble til Fixa 01.03.2026. Logg inn på Anbudstorget for å avslutte de siste jobbene og laste ned historikk eller viktige dokumenter, enten du er privatbruker eller bedrift. Gå til Fixa.no for å finne nye jobber eller legge ut et oppdrag.

Innhold på Anbudstorget vil være tilgjengelig i omtrent ett år fremover.

Elektriker, Maler, Rørlegger, Snekker i Møre og Romsdal

Formidlede anbud
  • 0
    Siste år
  • 0
    Siste 3 mnd
  • 0
    Aktive nå
Møre og Romsdal
Avsluttet

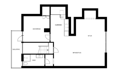
Oppussing av leiligheter fra 17. oktober

Vi ønsker et tilbud på følgende: 1- Oppsetting av nye og fjerning av gamle innvendige vegger og montering av nye dører (lage nye soverom). Leverandør skal inkludere veggplater og alt nødvendig utstyr. Vi leverer dører. 2- Maling av vegger, tak, lister, dører og dørkarmer i 2 leiligheter på 2 etasjer, inkludert 2 bad (totalt areal å male: ca. 210 m² gulvareal). Sparkling og grunnarbeid der nødvendig. Leverandør skal inkludere maling og alt nødvendig utstyr. 3- Levering og montering av nye taklamper, lysbrytere, stikkontakter og lysspeil på bad. Fjerning av eksisterende taklamper, lysbrytere og stikkontakter inkluderes. Kabling beholdes som den er (ingen nyinstallasjon). Montering av egen strømmåler på loftsleilighet. Levering og montering av elbillader i garasje (nyinstallasjon). 4- Demontering av gamle og montering av nye baderomsinnredninger og dusjkabinetter i 2 bad. Eksisterende rørføring beholdes. Vi leverer nye baderomsinnredninger og dusjkabinetter.
Anbud id:
1025712
  • Sted:
    Haram
  • Registrert:
    Onsdag 8. Oktober 2025

Lignende oppdrag i Møre og Romsdal

1 anbud