Entreprenør, Murer, Snekker i Oslo
Formidlede anbud
-
0Siste år
-
0Siste 3 mnd
-
0Aktive nå
Oslo
Avsluttet
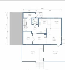
Påbygg 50 kvm, kun utvendig
Ønsker å bygge et påbygg med to etasjer. 25 kvm i hver etasje. Eksisterende garasje rives, men grunnmur må stå. Grunnmur bak mot hage og fra garasje er støpt og klar til oppstart. Ønsker at påbygget skal gå kant i kant med nåværende bygg.
Kun utvendig arbeid(bygge opp bæring og lukke).
25 kvm i hver etasje.
Anbud id:
988805
-
Sted:Oslo
-
Registrert:Torsdag 20. Mars 2025
Er du interessert i dette oppdraget?
Lignende oppdrag i Oslo
6 anbud
-
Nytt gjerde/glassMå skifte eksisterende gjerde. 15 m langt. Lett tilgjengelig og stolpesko er intakt. Ønsker glassgjerde-
Oslo
-
Lørdag 29. November 2025
-
-
Spotter til kjøkkenskap og henge lysekroneHei, Vi har bestilt montering av nye overskap, og arbeidet skal foregå 1-5 desember. Vi trenger en elektriker som tar den 4 spotter i taket, tar den en spot på sidevegg, samt henger opp en lysekro...-
Oslo
-
Lørdag 29. November 2025
-
-
Reparere flisgulv på badØnsker tilbud på reperasjon av flisgulv på bad. Badet ble pusset opp i 2011 og er på omtrent 6kvm, men gulvet er ujevnt. Det er omtrent 15 løse fliser og mangler en del fugemasse som har gått i opplø...-
Oslo
-
Fredag 28. November 2025
-
-
Legge ca 30m2 parkett, samt andre mindre oppgaverØnsker noen som kan legge parkett på ca 30kvm, samt lister. Leiligheten er helt tom. Servantskap på bad må byttes. både servant og kran beholdes. Fug i dusjhjørnet. Fra tak til gulv, samt fra hjørne...
-
Oslo
-
Fredag 28. November 2025
-
-
Legge parkett på ca 30kvm, med lister, samt noen småjobberVi ønsker å få lagt nytt parkettgulv i en leilighet på totalt 33kvm. Gulvet er på ca 30 av disse (minus bad). Samt listing. Vi må også ha hjelp til å fuge badehjørnet, fra tak til gulv i hjørnet, sa...
-
Oslo
-
Fredag 28. November 2025
-
-
Bytte silikonfuge på badet (dusj). Oslo, HaugenstuaHei! Jeg ønsker å få fjernet gammel silikonfuge og lagt ny rundt dusjen på badet i underetasjen. Arbeidet må være pent utført og helt tett. Bilder er vedlagt. må være ferdig innen 10. Desember.-
Oslo
-
Torsdag 27. November 2025
-