Anbudstorget har blitt Fixa
En ny og enklere tjeneste – enten du er privatbruker eller bedrift.
Anbudstorget ble til Fixa 01.03.2026. Logg inn på Anbudstorget for å avslutte de siste jobbene og laste ned historikk eller viktige dokumenter, enten du er privatbruker eller bedrift. Gå til Fixa.no for å finne nye jobber eller legge ut et oppdrag.
Innhold på Anbudstorget vil være tilgjengelig i omtrent ett år fremover.
Elektriker, Riving, Snekker i Oslo
Formidlede anbud
-
0Siste år
-
0Siste 3 mnd
-
0Aktive nå
Oslo
Avsluttet
Rive vegg mellom kjøkken og stue i leilighet
Hei!
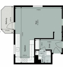
Jeg ønsker å kartlegge muligheter og kostnader knyttet til eventuell riving av vegg mellom kjøkken og stue i leiligheten jeg overtar 1. Oktober.
Veggen det gjelder er merket i rødt på vedlagt plantegning. Jeg har også lagt ved plantegning og bilde fra en tilsvarende leilighet i bygget, hvor samme vegg er fjernet men med gjenværende søyle. Det er imidlertid ikke sikkert veggen er bærende, men at denne løsningen har blitt valgt for å unngå å fikse taket.
i tillegg er det lagt opp strøm i veggen, så det må påregnes behov for elektriker for å flytte eller avslutte strømførende punkter.
Veggen utgjør ca. 2, 7 meter bredde og har standard høyde på ca. 2, 4–2, 65 meter, altså omtrent 6, 5 m².
Det er ønskelig at eventuell jobb kan gjennomføres så snart som mulig etter overtakelse 1. Oktober.
Ta gjerne kontakt ved behov for mer informasjon, plantegninger eller befaring.
Anbud id:
1014199
-
Sted:Oslo
-
Registrert:Fredag 1. August 2025
Jobben utført av:
Er du interessert i dette oppdraget?
Lignende oppdrag i Oslo
6 anbud
-
Koble opp strøm til lampe og fjerne en boksHei, Ønsker å sette opp en lampe i taket. Det er ikke oppsett for det. Ønsker også å fjerne denne boksen fra veggen. Ønsker også å endre fra vanlig lysbryter til dimmer 2 over spisebord og på bad. L...-
Oslo
-
Onsdag 25. Februar 2026
-
-
Mindre Elektrisk jobbFikk små avvik, utbedres og registreres av elektrovirksomhet som er registret i DSBs elvirksomhetsregister. Registrerte avvik: Sikringsskap 1. Det var brukt andre løsninger enn det som er anbefalt i...-
Oslo
-
Søndag 22. Februar 2026
-
-
Elektrikertjenester for bytte av tre lysbrytere uten endringer i OsloServicekategori: elektrikertjenester Beskrivelse: Utbytting av tre lysbrytere. Antall lysbrytere: 3 Type bytte: Samme type brytere Endringer: Kun like-for-like bytte Innen: så snart som mulig Kun...
-
Oslo
-
Fredag 27. Februar 2026
-
-
Oppfriskning av bad – mindre kosmetiske utbedringerJeg ønsker tilbud på mindre kosmetiske oppgraderinger på bad i leilighet i Oslo. Arbeidet gjelder: Bytte av dusjstopp / slukstopp (se bilder) Fjerne og legge ny silikon rundt dusjsone Kontroll og evt....-
Oslo
-
Lørdag 28. Februar 2026
-
-
Spesialtilpasset sittebenkØnsker en spesialtilpasset sittebenk med pute i gang som må bygges rundt en søyle (se vedlagt bilde). Ønsker at det skal være mulig med en utrekkbar skuff eller et lokk på toppen for oppbevaring. Ca m...
-
Oslo
-
Lørdag 28. Februar 2026
-
-
Dører, vinduer og terrassetakHei Vi ønsker å bytte 1 dør og 4 vinduer på yttervegg, ha en ny baderomsdør og vurdere et nytt uterom, i vårt hus i Daniel Walstads vei 9, 0493 Oslo. Vi ønsker at dører og vinduer skal være miljøve...-
Oslo
-
Lørdag 28. Februar 2026
-