Combined Shape Group 13 Combined Shape anbudstorget_logo Group 2 Group 6 Path 2 shutterstock_584449174 Shape

Entreprenør, Snekker i Oslo

Formidlede anbud
  • 0
    Siste år
  • 0
    Siste 3 mnd
  • 0
    Aktive nå
Oslo
Aktiv

Seksjonere hus

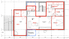
Hi, we would like to create an appartment for sale out of our house first floor. The fist floor already has a 55sqm appartment, i would like to connect the rest of the first floor to this appartment to create a 100sqm appartment and sale it. We need to build walls, sound proof ceilings, tear down some walls and create a nicer kitchen, we might need to extend the house a little to create an entrance for the appartment and extend the terrace. i only take contact with serious entrepeneurs committed to complete the project in less than 5months.
Anbud id:
1037708
  • Sted:
    Oslo
  • Registrert:
    Tirsdag 6. Januar 2026

Lignende oppdrag i Oslo

6 anbud
  • Bygge inn vinskap
    Vi har et vinskap som vi ønsker å bygge inn, og vurderer å få hjelp til dette. Vi har ikke landet 100% på ønsket løsning, men tanken er å heve det og «fylle inn» under og rundt skapet, slik at det...
    • Oslo
    • Torsdag 8. Januar 2026
    • Snekker
    • Møbelsnekker
  • Montering av frontdører
    Montering av kjøkkenfronter (kun frontdører) Jeg søker en erfaren håndverker/kjøkkenmontør til montering av nye kjøkkenfronter (kun frontdører) på eksisterende kjøkkeninnredning. Arbeid som skal utfør...
    • Oslo
    • Onsdag 7. Januar 2026
    • Snekker
    • Møbelsnekker
  • Flytte kjøkken
    Flytte kjøkkenet inn i stuen. Plugge ut eksisterende vann og avløpsrør, montere nye vann og avløpsrør fra bad til nytt kjøkken og levere og montere ny v. v. Bereder. Tilkobling av nye rør til kjøkken...
    • Oslo
    • Onsdag 7. Januar 2026
    • Elektriker
    • Rørlegger
    • Snekker
  • Ombygging og søknad om bruksendring
    Vi skal søke om bruksendring for et lokale i Oslo for å bruke det til takeaway. Lokalene er ca 65 kvm totalt. i den forbindelse trenger vi en ansvarlig prosjekterende og utførende for ventilasjon, og...
    • Oslo
    • Tirsdag 6. Januar 2026
    • Arkitekt
    • Prosjektleder
    • Entreprenør
  • Pigging fjell
    I forbindelse med planlagt etablering av garasje er det behov for å pigge bort deler av fjell. Fjell er skrånende. Bilder viser cirka område hvor fjell skal fjernes. Anslår at et område på ca 2x5meter...
    • Oslo
    • Søndag 4. Januar 2026
    • Entreprenør
    • Maskinentreprenør
    • Sprenging
    • Murer
  • Maling og gips til stue + hall + kjellerstue
    Maling og gips til stue + hall + kjellerstue
    Vi ønsker et pristilbud på maling av: -stue -hall -trapp -kjellerstue Se vedlegg, plantegning, markert med gul farge for de som ska males. Hall og legges gips + maling. Stue, trapp og kjellerstue h...
    • Oslo
    • Tirsdag 6. Januar 2026
    • Maler
    • Snekker