Betong, Gulv, Murer i Akershus
Formidlede anbud
-
0Siste år
-
0Siste 3 mnd
-
0Aktive nå
Akershus
Avsluttet
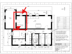
Støping av en kjeller gulv
Ønsker hjelp i forbindelse med støping av en kjellergulv ca. 68, 7 kvm, tykkelse 10 cm
gulvet blir klargjort til støping (fiber, grus, isopor, dampsperre og armering)
utfordringen er å få betongen inn, det er kun et dør og vinder som kan brukes til føring av betongen
Anbud id:
988690
-
Sted:Nordre Follo
-
Registrert:Onsdag 19. Mars 2025
Er du interessert i dette oppdraget?
Lignende oppdrag i Akershus
4 anbud
-
Støp av bederomsgulv og toppmembranØnsker å få utført støping av baderomsgulv, med påfølgende legging og sveising av Litex Toppmembran. Arbeidet skal dokumenters og når ferdig være 100% klart til flislegging. Et sluk, nett med varmek...-
Nordre Follo
-
Mandag 15. Desember 2025
-
-
Retting av murgulv i kjellerhybelVi rehabiliterer en hybel i kjelleretasje og har behov for å rette opp gulvet. Gulvet er av betong med høydeforskjell på 1-3 cm. Hybelen består av gang/stue (20 kvm) og soverom (9 kvm). Soverommet er...-
Nordre Follo
-
Torsdag 4. Desember 2025
-
-
Flislegging; 30 kvm gulv og 6 kvm veggAvrettet betonggulv fordelt på to nivåer og ett trappetrinn (som må støpes). Veggflis på litex, cirka 4-6 kvm. Alle materialer er på stedet. Det skal fuges ferdig og rengjøres ved overlevering.
-
Nordre Follo
-
Lørdag 29. November 2025
-
-
Forespørsel om installasjon av peisVi ønsker tilbud på installasjon av peis og evt. Arbeid for å slette ut murveggen bak. Vi ønsker et tilbud på bare installasjon og et med installasjon og pussing. Legger ved bilder av murvegg og type...-
Nordre Follo
-
Mandag 24. November 2025
-