Snekker i Akershus
Formidlede anbud
-
0Siste år
-
0Siste 3 mnd
-
0Aktive nå
Akershus
Avsluttet
Behov for snekkerhjelp til å lage ny vegg mellom to soverom
Hei,
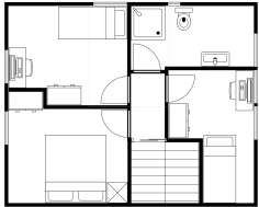
Vi er i behov av snekkerhjelp til å bygge en vegg mellom to soverom, hvor det i dag er et skap som skiller de to rommene. Vi får et nytt familiemedlem i januar, så ønsker at det blir mer lydtett mellom de to soverommene før det.
Legger ved to bilder. Det første bildet er slik øverste etg er nå, det andre er hvordan vi ønsker den nye veggen skal være (se bort i fra det andre som er endret på denne tegningen).
Anbud id:
968586
-
Sted:Bærum
-
Registrert:Tirsdag 5. November 2024
Er du interessert i dette oppdraget?
Lignende oppdrag i Akershus
6 anbud
-
Vi søker erfaren snekker til solid og ryddig terrasseoppdrag på Bekkestua. Oppdraget gjelder demontering og remontering av fire terrasser (totalt ca. 74 m²) med gjenbruk av eksisterende terrassebord der mulig.Sted: Bekkestua, bærum Omfang: 2 eneboliger – hver med 2 terrasser (til sammen ca. 74 m²) Arbeidsbeskrivelse: Oppdraget gjelder demontering og remontering av eksisterende terrasseplatt på totalt fire...
-
Bærum
-
Tirsdag 11. November 2025
-
-
Fjerne skap kjøkken, legge parkett underFjerne 2 skap på kjøkken. Det er ikke parkett under, så trenger hjelp til å få det fint under. Og legge tynn plate på bakveggen.
-
Bærum
-
Mandag 10. November 2025
-
-
Fikse loftslemLemmen til loftet har kilt seg helt fast / blitt skjev - trenger hjelp til å fikse. Ønsker ikke kontakt på telefon, kun på melding her.-
Bærum
-
Søndag 9. November 2025
-
-
Henge opp en knaggrekke og et speil.Knaggrekke og et speil skal på veggen i en entré. Det er gipsvegger. Leiligheten ligger på Lambertseter senter.
-
Bærum
-
Mandag 3. November 2025
-
-
Bygge innebygde hyller i bodHei, Jeg har en bod med innebygde hyller på toppen og ønsker å få innebygde hyller også nedover. Det står i dag en «hyllekommode» på gulvet, denne skal bort og erstattes ned innebygde hyller hele v...-
Bærum
-
Mandag 3. November 2025
-
-
Huskonstruksjon på såle for tilbyggHar rammetillatelse og har bygget ferdig ringmur og såle. søker nå snekker/entreprenør for konstruksjon av tilbygget - råbygg på 42kvm areal.-
Bærum
-
Søndag 2. November 2025
-