Combined Shape Group 13 Combined Shape anbudstorget_logo Group 2 Group 6 Path 2 shutterstock_584449174 Shape
Anbudstorget har blitt Fixa
En ny og enklere tjeneste – enten du er privatbruker eller bedrift.

Anbudstorget ble til Fixa 01.03.2026. Logg inn på Anbudstorget for å avslutte de siste jobbene og laste ned historikk eller viktige dokumenter, enten du er privatbruker eller bedrift. Gå til Fixa.no for å finne nye jobber eller legge ut et oppdrag.

Innhold på Anbudstorget vil være tilgjengelig i omtrent ett år fremover.

Entreprenør, Taktekker i Oslo

Formidlede anbud
  • 0
    Siste år
  • 0
    Siste 3 mnd
  • 0
    Aktive nå
Oslo
Avsluttet

Dormer i eksisterende tak

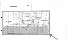
Søker et firma for å installere en dormer i eksisterende tak Vi er en gruppe som ser etter et erfarent firma som kan installere en dormer i et eksisterende tak. Ideen er å plassere en dormer langs hele takoverflate, som vil forbinde tre leiligheter. Dette avhenger delvis av tekniske muligheter. Det er tre leiligheter i taket (se tegninger). Vi er for øyeblikket i designprosessen, men vi har ennå ikke fått godkjenning fra kommunen. før vi går videre med søknad om tillatelse og design, ønsker vi å finne en tømrer som kan gi en omtrentlig pris og dele noen ideer om tekniske løsninger og muligheter. Vennligst se på tegningene før du tar kontakt. Kontakt oss kun dersom du kan gi en ca. Pris for prosjektet og har erfaring med lignende prosjekter i Oslo.
Anbud id:
982375
  • Sted:
    Oslo
  • Registrert:
    Mandag 10. Februar 2025

Lignende oppdrag i Oslo

6 anbud
  • Bytte av tak på enebolig. Enebakkveien 76
    Ønsker tilbud på bytte at tak (Islola powertekk nordic eller tilsvarende) Inkl ny papp, lekter, takrenner, pipebeslag og takvindu
    • Oslo
    • Fredag 27. Februar 2026
    • Snekker
    • Taktekker
    • Blikkenslager
  • Oppussing/bygg av bad
    Oppussing/bygg av bad
    Det ønskes tilbud på komplett bygging/renovering av bad i leilighet i (info fjernet) Moss Badet er ca. 7, 1 kvm iht. Tegning og skal inneholde. Komplett oppbygging iht. Gjeldende forskrifter (TEK17 og...
    • Moss
    • Torsdag 26. Februar 2026
    • Elektriker
    • Entreprenør
    • Maskinentreprenør
    • Vann og avløp
    • Murer
    • Flislegger
    • Rørlegger
    • Snekker
  • Totalentreprenør til flytting av kjøkken til åpen stue-kjøkken løsning
    Totalentreprenør til flytting av kjøkken til åpen stue-kjøkken løsning
    Vi ønsker å etablere nytt kjøkken i stue for åpen stue-kjøkken løsning. Arbeidet vil inkludere føring av vann og avløp fra eksisterende kjøkken til stue. Dette vil trolig kreve føring av rør via tak o...
    • Oslo
    • Onsdag 25. Februar 2026
    • Elektriker
    • Entreprenør
    • Rørlegger
  • Vedskjul
    Bygge et vedskjul med skråtak. Grunnflate 4x2 meter. mønehøyde 3 meter. Tak bygges av trykkimpregnert terrassebord 120 mm bredde. Taket tekkes med shingel. 2 endevegger kles med trykkimpriegnert teras...
    • Oslo
    • Mandag 23. Februar 2026
    • Snekker
    • Taktekker
  • Dripper fra taket
    Oppdaget i dag at det drypper vann fra taket til et soverom. Trenger noen som kan forklare hva som er problemet og kommet med anbefaling på eventuelle utbedringer.
    • Oslo
    • Mandag 23. Februar 2026
    • Rørlegger
    • Snekker
    • Taktekker
  • Bygge ut råloft
    Bygge ut råloft
    Hei Vi ønsker å bygge ut råloftet over leiligheten vår på Hovin i Oslo. Loftet er anslått til 34 kvadratmeter måleverdig areal. Det ikke måleverdige arealet (under 190 cm) er anslått til 32 kvadratmet...
    • Oslo
    • Lørdag 21. Februar 2026
    • Elektriker
    • Entreprenør
    • Snekker