Combined Shape Group 13 Combined Shape anbudstorget_logo Group 2 Group 6 Path 2 shutterstock_584449174 Shape

Rengjøring i Østfold

Formidlede anbud
  • 0
    Siste år
  • 0
    Siste 3 mnd
  • 0
    Aktive nå
Østfold
Avsluttet

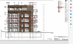
Utvendig vindusvask av boligblokk/sameie, bygget 2020 i Spydeberg

Vi ønsker utvendig vindusvask av alle vinduer + innglassinger (kun 2) i boligblokka som er på 5 etg. i tillegg: Vask av Terrasse/balkongvask med 2-sidig vask av glassrekkverk + markiser. Herunder selvsagt også gulv. Det er nødvendig med lift for å utføre jobben! (Jeg vil anbefale en befaring for å se på bygget før tilbud gis.) Vedlegger fasadetegninger, men gjør oppmerksom på at det er tilkommet 2 innglassinger i 5. Etg. Etter at tegningene ble laget nb: Jeg gjør oppmerksom på at anbudet må inneholde beskrivelse av hvordan arbeidet tenkes utført og hvilke vaskemidler som tenkes benyttet. Jeg gjør også oppmerksom på at anbud, ev. Tilbud må være innkommet innen 14. Februar da saken skal styrebehandles i slutten av februar.
Anbud id:
977691
  • Sted:
    Indre Østfold
  • Registrert:
    Torsdag 9. Januar 2025

Lignende oppdrag i Østfold

3 anbud
  • Flyttevask
    Vaske en leilighet på 42 kvadratmeter; bad, soverom og kjøkken/stue. Leiligheten er ikke møblert.
    • Indre Østfold
    • Lørdag 4. Oktober 2025
    • Rengjøring
  • 180 -200 kvm ca kontorlokale
    Hei, vi trenger hjelp til utvask av kontorlokale i Skjelfossveien 30, 1827 Hobøl. Vi skal flytte ut av lokalene så det er en utflytningsvask. Det er 4 toaletter/bad, kjøkken stue, showroom og noen...
    • Indre Østfold
    • Torsdag 2. Oktober 2025
    • Rengjøring
    • Flyttevask
  • Rengjøring av hus på ca 300 kvadratmeter
    Hei 😊 Vi ønsker å få hjelp til å gjøre ordentlig rent hos oss, i vårt hjem. Huset er ca. 388 kvadratmeter og har loftsetasje, hovedetasje og en kjeller ( halvparten av kjeller er hybel 80 kvm = den...
    • Indre Østfold
    • Torsdag 25. September 2025
    • Rengjøring