Combined Shape Group 13 Combined Shape anbudstorget_logo Group 2 Group 6 Path 2 shutterstock_584449174 Shape

Snekker i Oslo

Formidlede anbud
  • 0
    Siste år
  • 0
    Siste 3 mnd
  • 0
    Aktive nå
Oslo
Avsluttet

Møbelsnekring skap og benk i gang

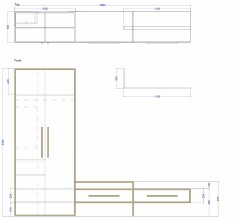
Det skal bygges et plassbygget skap med tilhørende benk og skuff i en gang, samt heng over benk. Det må være tilgang til et sikringsskap og noen stikkontakter inne i skap, samt hyller og heng. Se vedlagte skisser og teknisk. Det må lages med detaljer i eik, enten kryssfiner med kantlist, eller heltre eik stav, med hvit melamin for eksempel. Oppdraget haster. Ønsker estimert pris og rask befaring.
Anbud id:
982819
  • Sted:
    Oslo
  • Registrert:
    Torsdag 13. Februar 2025

Lignende oppdrag i Oslo

6 anbud
  • Oppussing og ombygging av liten bod
    Oppussing og ombygging av liten bod
    Jeg ønsker å få satt inn nye hyller i en liten bod i leiligheten min. i tillegg ønsker jeg at den nederste delen bygges om til en liten arbeidspult. Boden skal også males, men dette kan utgå. Se bild...
    • Oslo
    • Fredag 24. Oktober 2025
    • Snekker
    • Møbelsnekker
  • Bygge inn radiator og lage hylle
    Bygge inn radiator og lage hylle
    Hei, Jeg ønsker et pristilbud på en spesialtilpasset løsning for innbygging av radiator samt hylle i tilknytning til denne. Jeg ønsker at alt bygges i et malbart materiale slik at jeg kan male det se...
    • Oslo
    • Fredag 24. Oktober 2025
    • Snekker
    • Møbelsnekker
  • Plassbygd hylle og tv-benk
    Plassbygd hylle og tv-benk
    Plassbygd bokhylle og tv/stereobenk i eikefiner (ikke heltre som det står på tegningene) i leilighet på Torshov i Oslo.
    • Oslo
    • Torsdag 23. Oktober 2025
    • Snekker
    • Møbelsnekker
  • Snekre vegghengt tv-bord
    Snekre vegghengt tv-bord
    Tittel: Vegghengt tv-benk i eik Beskrivelse: Jeg ser etter en dyktig snekker/møbelsnekker som kan lage en vegghengt tv-benk i eik. Jeg ønsker samme design som “Madison vegghengt tv-benk” fra Proni De...
    • Oslo
    • Torsdag 23. Oktober 2025
    • Snekker
    • Møbelsnekker
  • Plassbygget bokhylle
    Plassbygget bokhylle
    Ønsker tilbud på plassbygget bokhylle. Se vedlagt bilder av eksempler på hvordan vi vil den skal se ut, mål på bredde, høyde og dybde og bilde av det innsøkket i veggen
    • Oslo
    • Onsdag 22. Oktober 2025
    • Snekker
    • Møbelsnekker
  • Bygge bokhylle
    Bygge bokhylle
    Jeg ønsker et pristilbud på en plassbygget bokhylle i furu kryssfiner. Tegning med ca. mål er vedlagt med bilde av veggen det skal utføres på.
    • Oslo
    • Tirsdag 21. Oktober 2025
    • Snekker
    • Møbelsnekker