Elektriker i Akershus
Formidlede anbud
-
0Siste år
-
0Siste 3 mnd
-
0Aktive nå
Akershus
Avsluttet
Oppgradering av elektrisk anlegg
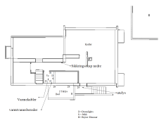
Sikringsskap
Installere tilknytingskap ute, flytte/montere måler og uttak/ sikring for garasje, ladestasjon og ekstra strømutak
Stikkledning er nedgravd sirka 25-30 m lang
Samle sikringer i sikringsskap øvre etasje. Ekstra sikringsskap i kjeller fjernes( inneholder 6 sikringer det fleste til kjøkken)
Ekstra kurser for vaskemaskin, varmepumpe, tørketrommel, varmepumpe og tv rom
Inngang
* Installere 12 stikkkontakter fordelt på 3 plasser.
* Montere brytere for utebelysning, vegglampe, lys over vinduene og gang.
* Montere 2 vegglamper og 3 lys over vinduer og utellys
Gang oppe: * Installere 8 downlights
Tv rom
* Installere: * 6x2 stikkontakter ved gulv.
* 10 stikkontakter for tv.
* 1 stikkontakt for julelys over vindu
* Montere 2 brytere på vegg for 2 spotlightsskinner med uttak op ved tak
* Montere 2 brytere på vegg for Vegglampe og taklampe med uttak op ved tak
* varmpumpe (elektrisk tilkobling).
* Utak på vegg for ventilasjon
Vaskerom
* Installere: * 2 stikkontakter (vaskemaskin torketrommel)
vc kjeller
* Montere gulvvarme med termostat.
* Installere elektrisk tilkobling for varmvannsbereder
* Montere lys i taket og ved speil.
* Installere stikkontakt ved speil.
Bod under inngang: * Installere taklampe
* Installere bryter for taklampe
* 2x2 stikkkontakter
Ute: * Installere stikkontakter: * ved inngang oppe og inngang kjeller.
* Montere utebelysning inngang kjeller
* Installere ladestasjon for bil.
Anbud id:
971344
-
Sted:Asker
-
Registrert:Onsdag 20. November 2024
Er du interessert i dette oppdraget?
Lignende oppdrag i Akershus
6 anbud
-
Ny installasjon av ladestasjon for el-bil i garasje med vurdering av smartløsninger for Enova-støtteKategori: elektriker Kundetype: Privat Beskrivelse: Hei! Type: Ny installasjon Krav: Vi trenger ladestasjon for el-bil i garasjen. Det kan være interessant å vurdere noe smartgreier for Enova-støtt...
-
Asker
-
Tirsdag 18. November 2025
-
-
Maling og vask av taklampe/vinduVi har et vindu i trappeoppgang som trenger innvendig vask. i tillegg skal vinduskarmer males i samme farge som vegg. Taklampe i glass må ha en vask. Vindu og lampe sitter høyt og trenger spesialutsty...-
Asker
-
Søndag 16. November 2025
-
-
Bytte av to defekte spotlights i kjøkkeninnredningTrenger å få byttet ut to defekte spotlights i en kjøkkeninnredning. Spot´ene er vist på vedlagte foto. De befinner seg på undersiden av et skap og er en del av en serie på totalt 7 stk. De nye spotte...-
Asker
-
Fredag 14. November 2025
-
-
Tilbud på installasjon av dedikert kurs for elbilladingJeg ønsker pristilbud for installering av dedikert kurs (32A) fra sikringsskap til stikkontakt for Tesla Wall Connector. Arbeidet skal inkludere jordfeilbryter (Type b) og overspenningsvern i henhold...-
Asker
-
Mandag 3. November 2025
-
-
Fordeling av tilførsler på automat sikring og ny kurs fortegnelse1. Jeg har en elektrisk automatsikring som er installert for ca. 4 år siden. Men tilførsler på automat sikringer skal fordeles om igjen og ny kurs fortegnelse skal utføres. 2. Det skal installeres 2 s...-
Asker
-
Onsdag 12. November 2025
-