Entreprenør, Murer, Riving i Akershus
Formidlede anbud
-
0Siste år
-
0Siste 3 mnd
-
0Aktive nå
Akershus
Avsluttet
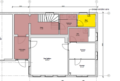
Pigge ut kjeller (30k m2) ca. 30cm
Ønsker tilbud på å få pigget ut i areal underetasje. Det er 3 stk gangrom og to stk våtrom. Se vedlagt plantegning (bod markert i gult skal også pigges)
Jeg har pigget opp noe og ser at det ligger ca 10cm betong øverst og løse masser (mindre steinmasser under).
Massene bæres ut i container utenfor døra. løsmasser skilles fra betong.
Anbud id:
980658
-
Sted:Nesodden
-
Registrert:Onsdag 29. Januar 2025
Er du interessert i dette oppdraget?
Lignende oppdrag i Akershus
2 anbud
-
Legging av robust sveisemembran i garasje etasjeskille (leilighet under)Vi trenger fagfolk til legging av vanntett sveisemembran på eksisterende betongdekke (4. 4m x 6m = 26. 4 m2). Under dekke er det en leilighet. Membranen må tåle at det støpes 10 cm betong over senere....
-
Nesodden
-
Tirsdag 30. September 2025
-
-
Ønsker å sette opp liten, buet støttemur.Ønsker å ramme inn frontpartiet av hagen med en støttemur. Støttemuren må være smal og rett for å ikke tape mye areal av hagen, da den er ganske smal i det partiet.
-
Nesodden
-
Søndag 21. September 2025
-